Beschrijving
Sommige huizen liggen prima, andere hebben een fijne en autovrije ligging. Bloemstede 344 spant echter de kroon: direct aan het water, zonder achterburen, zonder inkijk en met elke dag een groen en rustgevend uitzicht. Voeg daar maar liefst 125 m² woonplezier aan toe verdeeld over een ruime woonkamer met open keuken, vier slaapkamers en u begrijpt: dit is geen standaard tussenwoning meer, maar een serieus familiehuis. Maak snel een afspraak en kom sfeer proeven. Wij laten je de woning graag zien.
De ligging:
Bloemstede. Wonen in Bloemstede betekent wonen in een fijne omgeving. De wijk staat bekend om zijn vele groenstroken, waterpartijen en speelvoorzieningen. Voor de dagelijkse boodschappen of een middagje shoppen ligt winkelcentrum Bisonspoor om de hoek. Bovendien bent u met de auto of de trein (station Maarssen) binnen no-time in hartje Utrecht of Amsterdam.
Indeling
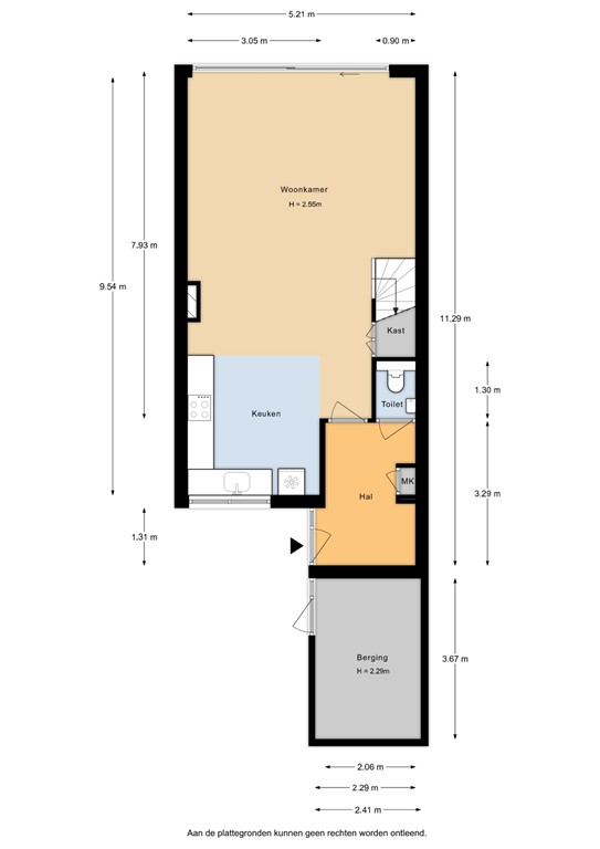
Stap binnen in de hal met meterkast, garderobe (want ergens moet je jouw jassen en die van je gasten kwijt) en toilet. Hierna loop je door naar de woonkamer. Dankzij de grote raampartijen is het heerlijk licht en heb je zicht op het groen aan de achterzijde van de woning. De open keuken aan de voorzijde is modern, functioneel en biedt genoeg ruimte om een sterrenmaaltijd te bereiden terwijl je contact houdt met de visite aan de eettafel.
Eerste verdieping
Overloop met een vaste trap naar de tweede verdieping. Op de eerste verdieping vinden we drie slaapkamers. De badkamer is voorzien van frisse betegeling, een inloopdouche en een badkamermeubel met een dubbele wastafel om filevorming in de ochtend tegen te gaan.
Tweede verdieping
De zolderverdieping is een volwaardige woonlaag. Hier vind je de vierde slaapkamer, hobbyruimte of een ideale thuiswerkplek waar je daadwerkelijk meters kunt maken. Ook de opstelling voor de wasmachine en de cv-ketel zijn hier netjes weggewerkt.
Tuin
De achtertuin (circa 12,5 meter diep en ruim 5 meter breed, gelegen op het noordoosten) is vrij gelegen. Terwijl de buren drie straten verderop tegen een schutting aankijken, kijk jij uit over water en bomen. Ochtendzon bij de koffie, 's middags in de zomer maanden zowel zon als beschutting. De voortuin is handig om de fietsen te plaatsen en daar is ook nog een aangebouwde stenen berging (voorzien van elektra), goed voor 9 m² externe bergruimte — ideaal voor fietsen en gereedschap.
Bezichtigingen:
Maak voor een bezichtiging een afspraak, dan kunt u in alle rust kijken. Liever flexibel in de tijd? Maak dan gebruik van het inloopmoment op woensdag 04 maart tussen 16:00 uur en 18:00 uur.
Kijk voor de afmetingen op de plattegronden. Ondanks de uiterste zorg die zowel makelaar als opdrachtgever aan de tekst en plattegronden besteden kunnen hier geen rechten aan ontleend worden en zijn deze voor informatieve doeleinden. U bent van harte welkom om de woning te komen bezichtigen.
Bijzonderheden
• Vrijstelling overdrachtsbelasting mogelijk;
• Geweldig gezinshuis;
• 126 m² woonplezier;
• Bouwjaar 1974 (BAG);
• Verwarming en warm water middels CV- ketel;
• Energielabel “C”;
• Fijne achtertuin;
• Auto vrije ligging, ideaal met kinderen;
• Handige eigen berging.
Oplevering in overleg, 13 juli 2026 heeft de voorkeur van de verkopers.
Plattegronden
Bloemstede 344 - Begane grond - 2D.jpg
Bloemstede 344 - Begane grond - 3D.jpg
Bloemstede 344 - 1e verdieping - 2D.jpg
Bloemstede 344 - 1e verdieping - 3D.jpg
Bloemstede 344 - 2e verdieping - 2D.jpg
Bloemstede 344 - 2e verdieping - 3D.jpg
Bloemstede 344 - Situatie - 2D.jpg
Bloemstede 344 - Situatie - 3D.jpg