Beschrijving
Je groeit, je plannen groeien mee… en eerlijk is eerlijk: je gezin verdient een huis dat dat tempo moeiteloos bijhoudt. Welkom in deze royale geschakelde 2-onder-1-kapwoning in Leidsche Rijn (het Zand), waar ruimte, comfort en gezelligheid samenkomen. Met maar liefst vijf slaapkamers, een royale tuin aan het water en een veilige ligging in een kindvriendelijk hofje is dit zo’n plek waar je denkt: ja, hier kunnen we jaren vooruit. De woonkeuken kijkt gezellig uit op de straat, kinderen spelen zorgeloos buiten, en jij geniet van het idee dat alles klopt. Dit is wonen met hoofdletter W. Maak snel een afspraak en kom sfeer proeven. Wij laten je de woning graag zien.
De ligging:
Het Zand: Leidsche Rijn Centrum zit op 600 meter afstand van ons huis, het station bevindt zich op 700 meter. In Leidsche Rijn Centrum vindt je alles wat je nodig hebt: gezellige restaurants (zoals Indiaas, Grieks en Italiaans), een champagnebar en in de lente en zomer een levendig plein waar de terrassen vol zitten en kinderen spelen in het fonteintje. Voor de dagelijkse boodschappen is er een grote Jumbo met foodcourt, ideaal als je even snel iets wilt eten. Onze persoonlijke favoriet? Vishandel Volendam — voor ons zonder twijfel de beste kibbeling die we ooit hebben gegeten.
Op ongeveer 1,2 kilometer afstand ligt het Máximapark, een heerlijke plek om te wandelen, te sporten of gewoon even te ontspannen. Midden in het park ligt een grote speeltuin waar kinderen kunnen spelen. Voor gezinnen is het extra fijn dat er binnen één kilometer maar liefst vijf scholen liggen.
Ook praktische voorzieningen zijn dichtbij: het zwembad, het ziekenhuis, The Wall (met onder andere Decathlon, Mantel en MediaMarkt) en verschillende sportfaciliteiten bevinden zich allemaal in de directe omgeving van de woning.
De buurt zelf is kinderrijk, gezellig en levendig. We hebben de wijk zien groeien: van een vrij kale, net opgeleverde nieuwbouwwijk naar een buurt vol groen en leven.
Indeling
Je stapt binnen in een lichte hal met toilet en garderoberuimte. De woonkeuken aan de straatzijde is het hart van het huis: ruim opgezet en perfect voor lange ontbijten en gezellige etentjes. Terwijl jij je uitslooft achter het fornuis, zwaai je naar de buren of houd je een oogje in het zeil op het hofje. Aan de tuinzijde bevindt zich de royale woonkamer met grote raampartijen en openslaande deuren zorgen voor een fijne verbinding met buiten. De ruimte voelt open en uitnodigend, ideaal voor gezinsleven én ontspanning.
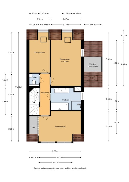
Eerste verdieping
Overloop met een vaste trap op de tweede verdieping. Toegang tot drie slaapkamers, de badkamer en een separaat toilet. Aan de voorzijde van de woning ligt een slaapkamer en daarnaast ligt de geheel betegelde badkamer met een badkamermeubel met dubbele wastafel, royale douche, heerlijk ligbad en designradiator. Voor de lichttoetreding en frisse lucht is er een raam en de betegeling is modern. Aan de achterzijde van de woning zijn nog twee slaapkamers gesitueerd. Een master-bedroom voor de ouders, kamers voor de kids? You name it, we got it.
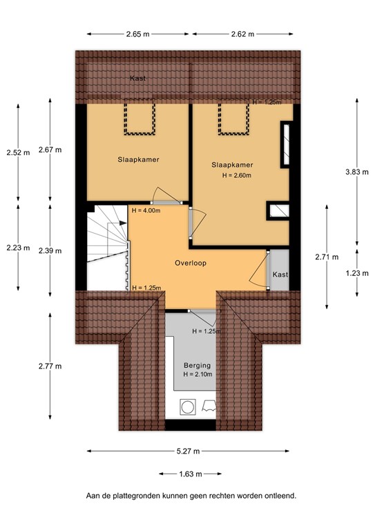
Tweede verdieping
Nog meer ruimte! Extra slaapkamers of een multifunctionele verdieping waar je alle kanten mee op kunt. Denk aan logeerkamer, speelzolder of werkstudio. Met vijf slaapkamers in totaal groeit dit huis moeiteloos met je mee. Hier is ook een berging waar witgoed is opgesteld.
Tuin
De tuin ligt op het noordwesten, wat betekent dat je na je werk nog heerlijk de laatste zonnestralen meepakt. En dan die ligging aan de singel... Met een strakke hardhouten damwand is dit dé plek voor een picknick aan de waterkant. Oh, en de voortuin? Die ligt aan een superveilig, kindvriendelijk hofje waar de kids nog gewoon zorgeloos buiten kunnen spelen.
Bezichtigingen:
Maak voor een bezichtiging een afspraak dan kunt u in alle rust kijken. Liever flexibel in de tijd? Maak dan gebruik van het inloopmoment op woensdag 25 februari tussen 15:00 uur en 18:00 uur.
Kijk voor de afmetingen op de plattegronden. Ondanks de uiterste zorg die zowel makelaar als opdrachtgever aan de tekst en plattegronden besteden kunnen hier geen rechten aan ontleend worden en zijn deze voor informatieve doeleinden. U bent van harte welkom om de woning te komen bezichtigen.
Bijzonderheden
- Geweldig gezinshuis;
- Net geen 150 m² woonplezier;
- Bouwjaar 2007 (BAG);
- Volledig voorzien van isolerend glas (HR++), muur-. vloer- en dakisolatie;
- Verwarming en warm water middels stadsverwarming;
- In 2023 voorzien van 11 zonnepanelen met nu nog 9 jaar fabrieksgarantie;
- Energielabel “A+”;
- Royale achtertuin en fijne voortuin;
- Handige eigen berging met vliering;
- Onderhoudsarme gevel van keralit;
- Parkeren kan op het hofje voor de woning.
Oplevering in overleg, wat betreft de verkopers kan dit al vanaf half mei 2026.
Plattegronden
Agaatvlindersingel 10 - Begane grond - 2D.jpg
Agaatvlindersingel 10 - Begane grond - 3D.jpg
Agaatvlindersingel 10 - 1e verdieping - 2D.jpg
Agaatvlindersingel 10 - 1e verdieping - 3D.jpg
Agaatvlindersingel 10 - 2e verdieping - 2D.jpg
Agaatvlindersingel 10 - 2e verdieping - 3D.jpg
Agaatvlindersingel 10 - Vliering - 2D.jpg
Agaatvlindersingel 10 - Vliering - 3D.jpg
Agaatvlindersingel 10 - Situatie - 2D.jpg
Agaatvlindersingel 10 - Situatie - 3D.jpg