Beschrijving
De woning, met de ligging in de kindvriendelijke en rustige buurt Molenvliet, voelt bij binnenkomst al gelijk als een warme jas. Er is een parkeerplaats op eigen perceel, een fijne tuin op het oosten, een vrijstaande stenen berging én een achterom. Het mooie is dat deze warme jas op de groei is….je kunt namelijk nog prima een uitbouw plaatsen, een brede dakkapel of misschien wel twee. Zo biedt deze woning alles wat je nodig hebt voor jarenlang woonplezier. Maak snel een afspraak en kom sfeer proeven. Wij laten je de woning graag zien.
De ligging:
Molenvliet, de gewilde rustige en groene (met alles in de) buurt. Scholen, winkels en andere voorzieningen zijn op steenworp afstand. Het gezellige het centrum en het treinstation zijn snel en makkelijk per fiets bereikbaar. Deze centrale ligging biedt een goede verbinding naar de snelwegen, maar dat is fijn forenzen! Het nabijgelegen wijkpark biedt volop mogelijkheden voor wandelen en spelen.
Indeling
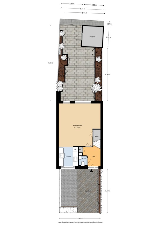
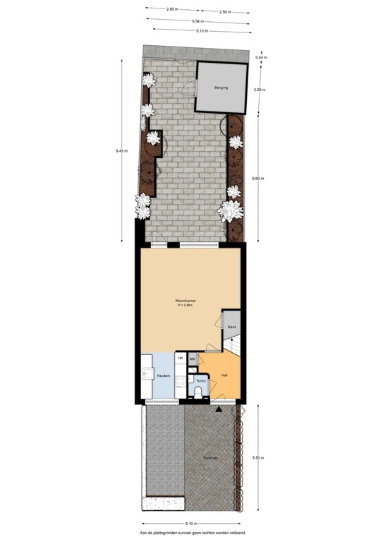
Entree/hal met toegang tot de woonkamer, het toilet met fonteintje, de meterkast en de trap naar de eerste verdieping. De ruime en lichte woonkamer is voorzien van vloerverwarming en een mooie PVC-vloer die niet van echt hout te onderscheiden is. Aan de voorzijde van de woning bevindt zich de open keuken (2021) met voldoende kastruimte en inbouwapparatuur voor uren kookplezier. De woonkamer heeft een handige kast onder de trap en er is toegang tot de achtertuin. De tuin is gelegen op het oosten en beschikt over een vrijstaande stenen berging met elektra en een achterom. Superhandig als extra opslagruimte of fietsen.
Eerste verdieping
Overloop met een vaste trap op de tweede verdieping. Toegang tot 3 slaapkamers en de badkamer. Aan de voorzijde van de woning ligt een slaapkamer en daarnaast ligt de geheel betegelde badkamer met een badkamermeubel met dubbele wastafel, royale inloopdouche, wandcloset en designradiator. Voor de lichttoetreding en frisse lucht is er een raampje en de betegeling is modern. Aan de achterzijde van de woning zijn nog twee slaapkamers gesitueerd waarvan er in een gebruik is als kastenkamer / werkplek.
Tweede verdieping
Ruime voorzolder met de opstelplaats voor de cv-ketel, mechanische ventilatie, de aansluiting voor de wasmachine en een zee aan bergruimte. De vierde slaapkamer is royaal en heerlijk licht dankzij een de dakramen aan de voor en achterzijde. Ook hier is volop bergruimte aanwezig.
Tuin
De achtertuin ligt op het oosten en is onderhoudsvriendelijk aangelegd met sierbestrating en verhoogde borders. Je hebt hier volop privacy en kunt heerlijk van de ochtend- en middagzon genieten. Via de achterom is de tuin ook gemakkelijk bereikbaar. Daarnaast is er een vrijstaande stenen berging aanwezig, je wilt die loungeset en bbq toch ergens kwijt.
Bezichtigingen:
Maak voor een bezichtiging een afspraak dan kunt u in alle rust kijken. Liever flexibel in de tijd? Maak dan gebruik van het inloopmoment op vrijdag 13 februari tussen 15:00 uur en 17:00 uur.
Kijk voor de afmetingen op de plattegronden. Ondanks de uiterste zorg die zowel makelaar als opdrachtgever aan de tekst en plattegronden besteden kunnen hier geen rechten aan ontleend worden en zijn deze voor informatieve doeleinden. U bent van harte welkom om de woning te komen bezichtigen.
Bijzonderheden
- Vrijstelling overdrachtsbelasting mogelijk;
- Geweldig gezinshuis;
- Net geen 100 m² woonplezier;
- Bouwjaar 1984 (BAG);
- Volledig voorzien van isolerend glas (HR++), muur-. vloer- en dakisolatie;
- Verwarming en warm water middels CV- ketel (Remeha Tzerra Ace 28c 2021);
- Energielabel “A”;
- In 2021 voorzien van 8 zonnepanelen (Trina TSM-385 DE09,05);
- Screens op zonne-energie (2025);
- Dakgoten vervangen (2025);
- Fijne achtertuin;
- Handige eigen berging en achterom;
- Parkeren kan op eigen terrein voor de woning.
Oplevering in overleg, 1 mei 2026 heeft de voorkeur van de verkopers.
Plattegronden
Boterbloemweide 86 - Begane grond - 2D.jpg
Boterbloemweide 86 - Begane grond - 3D.jpg
Boterbloemweide 86 - 1e verdieping - 2D.jpg
Boterbloemweide 86 - 1e verdieping - 3D.jpg
Boterbloemweide 86 - 2e verdieping - 2D.jpg
Boterbloemweide 86 - 2e verdieping - 3D.jpg
Boterbloemweide 86 - Situatie - 2D.jpg
Boterbloemweide 86 - Situatie - 3D.jpg